An Examination of SFMOMA and LACMA During the Twentieth Century
CONNOR SHEEHAN
Theory and Practice, Vol. 1, 2018
Abstract Californian art museums throughout the twentieth century went through a series of changes, both in becoming and remaining “modern.” This paper will examine two major art museums in California and detail their relation to the modern art movements of the twentieth century, focusing on architectural trends, histories of key figures within the institutions, and the museums’ place in their communities. By examining the histories of both the San Francisco Museum of Modern Art (SFMOMA)and the Los Angeles County Museum of Art (LACMA), one can see each institution’s progressive attitude towards art and its display. This paper aims to do away with the idea that “museum” and “modern” exist in separate spheres.
Keywords Museums; Architecture; Modern Art; San Francisco; Los Angeles
About the Author Connor Sheehan is a graduate of the history department at Cal Poly, San Luis Obispo. Research interests include twentieth-century art history, social movements, and the link between art and society. Connor can be contacted at: csheehan1220@yahoo.com.
Introduction
Throughout the twentieth century, popular art underwent many changes, both in public perception and accessibility. “Modern Art” as a style took shape and gave rise to other forms of visual media that the public places under the umbrella term “modern.” While the artistic world rapidly evolved throughout the twentieth century, one wonders if the institutions that held such art had to evolve as well. The purpose of this paper is to examine the development of two art museums in California during the twentieth century and identify significant trends or changes that had to be made to accommodate the “modern.” It should be noted that, in the art historical tradition, “modern” art can trace its beginnings to the Impressionist movement in nineteenth-century France. It should also be noted that in the art historical field, “modern” and “contemporary” art are two distinct movements/styles, but this paper will be using the colloquial versions of these terms that the public uses.[1]
This paper investigates several different areas related to the art museum as an institution to track the general development or evolution of two Californian art museums during the twentieth century. These areas include architectural developments and the theories behind them, directorial challenges and solutions concerning exhibiting contemporary arts, and the notion of the “place” of a museum in its community evolving over time. These, while not all the ways that art museums are affected or can change, cover large amounts of influence that an art museum both receives and extends from and into the artistic world. Aspects include but are not limited to: the public perception of modern art and modern art exhibitions, and technological advancements and/or setbacks that may affect a museum’s experience in adapting to modern art. Accurately representing this evolution of the art museum as an institution should also combat the notion that museums are non-moving, traditional institutions that only cater to old examples of “fine arts.” By going against this thought, this research will provide evidence of the Californian art museum as a wholly progressive institution, constantly looking to remain at the forefront of the modern art world in how it presents its exhibitions. With these aspects in mind, this paper explores how Californian art museums operated and evolved throughout the twentieth century. This evolution of the art museum in California should be seen not as an isolated event, but as part of the larger evolution of art museums as public institutions in America. By doing away with the thought that art museums are traditionally locked in an older time, the public can visit them with new eyes, and be a part of their evolution in a community.
The Californian Art Museum
This paper draws a large amount of evidence from two of the major art museums in California, the Los Angeles County Museum of Art (LACMA) and the San Francisco Museum of Modern Art (SFMOMA). These two institutions have proven influential in the twentieth century and its art movements, as well as affecting trends in smaller museums. These two museums provide a general look at how modern art impacted art museums in California. As these two museums exist in different areas of the state, they operate with a certain amount of freedom from one another, while each maintains a large presence in the Southern and Northern California art scenes.
Of the two museums, the San Francisco Museum of Modern Art has existed as an entity for a longer period, as it was established in the 1930s.[2] In its early years, the Museum resided in the War Memorial Veterans Building, taking the fourth floor as its site of operations. From 1935 until 1960, Grace L. McCann Morley worked as the art director for the institution. In a 1960 interview, Morley goes into details of her career at that time, and how the Museum operated in its early years. Morley details the initial founding of the San Francisco Museum of Art by the Art Association in 1916 and how a want for a special art museum in San Francisco allowed the Museum to come into existence.[3] While the Museum had its roots in the Art Association, by the time of its opening in 1935, it acted separately from the Art Association, which maintained a type of “remote control” relationship with the Museum. That is to say that the Art Association did not closely direct how the Museum of Art operated, but mainly shared a historical link to the institution.
The Museum hoped to show the evolution of modern art, allowing the public to follow the progression of modern art and form their own opinions on it.
This relationship allowed the Museum plenty of freedoms, especially when it came to exhibitions. Without the need for outside approval, the Museum of Art could procure works of art that its board, and only its board, wanted to acquire. Morley recalls that in its early exhibits, the Museum had almost no permanent collections. Instead, it cycled through many traveling exhibitions, notably many of Rembrandt’s sketches.[4] This may be a case of simply not having the means or space for permanent collections, but the notion of a museum cycling through exhibitions that it chose on its own is very progressive for the time. It is important to reiterate that the Museum had no formal obligations to the Art Association, and by extension, to its wishes and artistic preferences. This amount of freedom truly allowed the Museum to showcase the type of art that the board wanted the public to see. This is exhibited through the various styles showcased, such as Renaissance pieces, works by Pablo Picasso, and contemporary textile works.[5] Morley describes the role of the Museum as being preoccupied with showcasing the types of art that an area was interested in. In this case, the Bay Area was a large hub for textile makers, resulting in the exhibition on contemporary textiles being shown. Morley also explains the reasoning behind exhibiting French impressionist pieces of the nineteenth century. Essentially, the Museum hoped to show the evolution of modern art, tracing its roots to the Impressionist movement, updating each exhibition with more modern and contemporary pieces, allowing the public to follow the progression of modern art and form their own opinions on it.[6] This type of progressive thinking in terms of what exhibitions can achieve set the San Francisco Museum of Art apart early on as an institution that wanted to expand the role that art museums could play for the public.
The San Francisco Museum of Art would be designated as the San Francisco Museum of Modern Art in 1976, to more accurately reflect the types of work that museum exhibited.[7] During this period, SFMOMA created a plan for its own facility, to expand its capabilities. This building would be completed in 1995, sixty years after its initial opening, and would become the new home of the Museum and its collections.
In Southern California, the Los Angeles County Museum of Art is the predominant modern and contemporary art museum. Established in 1961, the Museum became a separate entity from the Los Angeles Museum of History, Science, and Art, established in 1910.[8] After its establishment, LACMA built its facility, dedicating a building to its permanent collection, and another for special exhibitions. Throughout its history, LACMA has added more buildings to its campus, notably The Anderson Building in 1986 (renamed the Art of the Americas Building in 2007) dedicated to housing modern and contemporary art. In a 1995 interview, Henry Hopkins explained the impact that LACMA had on the Los Angeles art scene. Hopkins was a curator and art director who played a critical role in the Museum’s early years and served as a director at SFMOMA from 1974-1986.[9] Hopkins was part of the initial break away from the Los Angeles Museum of History, Science, and Art, and was teaching at the University of California, Los Angeles at the time. He recalled that once LACMA was its own entity, membership spiked from around 3,000 to 20,000 members in a short period of time.[10] This, coupled with a series of lectures that he taught on modern and contemporary art, brought the modern art movements to the forefront of the Los Angeles art scene. One instance, in particular, is the international animated film festival put on by the Association Internationale du Film d’Animation, which Hopkins worked at during its first year. At the time of the interview, the festival was entering its thirty-seventh year.[11] By hosting festivals like the one above, LACMA cemented its reputation as a modern art institution early on in its life.
Once LACMA was its own entity, membership spiked from around 3,000 to 20,000 members in a short period of time.
Both the San Francisco Museum of Modern Art and Los Angeles County Museum of Art established reputations early on for exhibiting and supporting modern art movements in their respective cities. Each institution made liberal use of its facilities, allowing for more experimental exhibitions, as seen in SFMOMA’s traveling exhibitions and LACMA’s building dedicated to special exhibitions. By creating an environment in which modern art was respected, each museum was able to exhibit more modern and contemporary pieces, even going as far as only showing these types of work. In time, both museums’ passion for modern art would foster more modern art being exhibited, created, and discussed in the San Francisco and Los Angeles areas.
The Architecture of an Art Museum
The design of a museum reveals many of its functions and intents. The museums discussed in this paper are urban institutions, and as such reflect their urban environments. That is to say that they subscribe to certain qualities of urban architectural theory. The historian and theorist Lewis Mumford believed that urban planning ought to reflect an organic relationship between people and their living spaces. He thought the museum to be “the most typical institution of the metropolis.”[12] Following this belief, the museum, therefore, must represent its relationship with its patrons throughout its architecture.
In the early twentieth century, there was growing sentiment that the museum had no place in modernity, as belief spread that the museum as an institution had stagnated.[13] This is to say that no new developments seemed to prevail in museum theory, causing museums to appear archaic. At the time, many radical modernist thinkers saw art museums as akin to cemeteries, holding the dead arts.[14] Ensuing debates between modernists focused on the issue of the museum, its ties to history, and how to more accurately represent said ties. These debates inevitably led to changes in the design of the museum and the function that said design plays.
While various architects have differing theories on how a museum should look on the outside, many basic theories, especially pertaining to art museums, survive and manifest themselves in the interiors of buildings. Tracing art museums to their beginnings in the Enlightenment, one can see the rather straightforward thought that art should be viewed sequentially, or one piece after another.[15] This can be noted in many older institutions, taking inspiration from the Greek temple: a rectangular shape, with rooms or spaces equally divided, each flowing into the next (figure 1).

For the time, this was a fine theory. Classical art was popular, and each piece was meant to be appreciated on its own, if not in relation with one or two companion pieces. However, as time moves on, design theory must as well. The beginning of the twentieth century saw new developments in art museum design, one of which is seen in the Boston Museum of Fine Arts (figure 2). The Museum still was designed with classical elements, yet with an updated point of view on exhibitions. The building is divided by elevation of its sections, effectively creating multiple museums within the larger structure.[16] This allows for different collections to be shown in different sections of the building. While still isolating each exhibition from the others, this divided elevation design choice allows visitors to the Museum to move from one style of art to the next. This shift from moving from painting to painting to now moving from style to style began to pave the way for a plethora of different art styles to be exhibited under one museum in the coming decades.

These architectural changes made their way west as well. Both LACMA and SFMOMA’s designs offer evidence of the shift in design theory. Shown below is a floor plan for the original building at LACMA (figure 3). Similar to the Boston Museum of Fine Arts, LACMA’s design focuses on the ability to show multiple exhibitions at once, while still allowing the visitor to move through different sections. An important detail to note is that within each gallery, no walls are shown. This does away with the traditional art museum design that, essentially, led visitors through the museum in a calculated path. The open space layout at LACMA allows each visitor the opportunity to choose what piece they see, and where to go from there. This theory in architectural design is firmly modern and reflects the progressive attitude that LACMA and its founders exhibited in terms of the presentation of art.

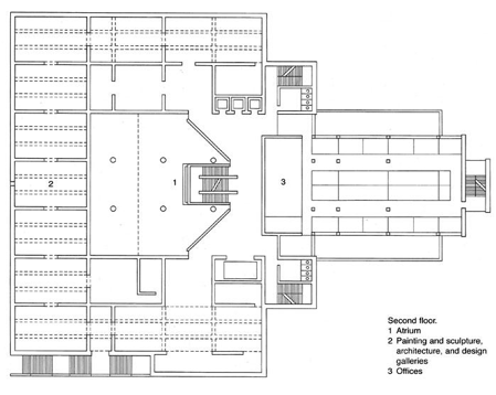
Contrasting LACMA and SFMOMA, the latter did not originally have the luxury of inhabiting a space that it fully controlled.[17] This limited space did not grant the facility much freedom when setting up exhibitions. Thus, for the early years of the Museum, it followed more conventional exhibition methods. It wasn’t until 1995, sixty years after its opening, that the Museum had its own building, designed by Swiss architect Mario Botta (figure 4).[18]
Shown above are Botta’s floor plans for the first, second, and third floors of SFMOMA. It can immediately be seen that the design of the Museum does not follow the same plan as that of LACMA, rather it appears to be more in line with traditional design by closing off sections and isolating exhibitions. Here, one can easily see the base of the Greek temple theory that has persisted for so long in museum design. This does not necessarily disqualify SFMOMA from operating under modern theories. When moving up the Museum from the first floor to the third, the visitor can note each floor becomes fuller with walls and sections. This allows for a more scrutinizing gaze on pieces of art as a visitor moves through the Museum. While not following the open-air plan that LACMA put into place, SFMOMA still operates in modernist theories in other ways, most notably its exhibitions throughout its history.
A Museum’s “Place” in a Community
In the early twentieth century, questions of how a museum fit into the modern city began to rise.[19] Nathaniel Burt’s social history, Palaces for the People, documents the rise of the American art museum, starting on the East Coast and moving westward over time. Burt claims that after the Civil War, American society believed that cities required art museums as signs of “cultural maturity.”[20] According to Burt, western cities saw a successful art museum as a sign that they (the city) were as equally cultured as older Eastern seaboard cities. After all, the Metropolitan Museum of Art in New York and the Boston Museum of Fine Arts had each garnered acclaim for their collections by the late nineteenth century. With the ambition to create equally successful art museums, the late nineteenth century saw a surge in the creation of these institutions.
However, as previously touched upon, the early twentieth century saw urban art museums entering an unknown realm. That is to say that as modernization quickly urbanized America, many were left wondering if these traditional institutions had a place in the new society that was forming. Here, place means the role that an institution inhabits in a community. In other words, the conversation shifted from establishing art museums to knowing how art museums benefit a community. American novelist Gertrude Stein reportedly observed that an institution may be either modern or a museum, but not both.[21] This aptly summarizes the idea that the twentieth century was bringing an inherently new type of life to America and that museums did not necessarily fit into this mold. The question of how art museums could adapt to modernity was consequently asked. If Lewis Mumford’s ideas that urban planning reflects an organic relationship with its citizens and that museums represent the metropolis are to be believed, then surely the art museum cannot be left in the past, representing an earlier time.[22]
The twentieth century was bringing an inherently new type of life to America and museums did not necessarily fit into this mold.
Author Vera Zolberg writes on the complexity of the function of American art museums during this period, citing conflicting agendas from competing groups.[23] Zolberg asserts that during the late nineteenth and early twentieth centuries, a fight for the purpose of art museums was taking place. On one side, elitists viewed art museums as means of collecting and preserving works of art, while populist reformers saw their central purpose as educating the public. Proponents for the preservation of art argued that the reformer camp’s theory only served to reduce artworks to commercial entertainment. Those who wished for art museums to remain elite also believed that by isolating the institution from lower class patrons, a unique culture would emerge, distinct from other types of museums.[24] The notion that art was not accessible to all was predominant for much of the first half of the twentieth century. It was not until the latter half of the century that the idea of public education saw more support from those within the art and art historical fields.[25] With advances in public funding and support, art museums were able to become more accessible to visitors of various socioeconomic levels. This, in turn, led to greater public appreciation of art existing outside the private sphere. From this point, art museums came to be seen as public institutions rather than sites for the wealthy to display their collections.
Grace L. McCann Morley, the first director of the San Francisco Museum of Art, was a firm believer in the power of public education and fought to ensure that her museum would not simply preserve art pieces hidden away from the public eye.[26] Morley was particularly interested in the interaction between the community and the Museum. One strategy that she employed was the integration of local artists into the early exhibitions at the Museum, believing that this created a stronger bond between the visitor and the Museum. Morley also took advantage of the emerging medium of television in order to reach a larger audience. Museum employees produced a show titled Art in Your Life.[27] This allowed viewers a more in-depth look at how the Museum operated by offering interviews and behind the scenes tours of the facilities. By allowing for more public engagement both within and outside of the Museum, Morley achieved the goal of creating a museum that operated not as a hub for aristocratic art collectors, but as a public educator. In the early years of the San Francisco Museum of Art, Director Morley understood the opportunities that modern art museums could offer in terms of viewer interaction. Through the use of various types of education and interaction, she was able to firmly establish the Museum’s sense of place in San Francisco and its art scene.
Conclusion
Over the course of the twentieth century, the San Francisco Museum of Modern Art and the Los Angeles County Museum of Art became California’s two prevalent modern art museums. Through their respective histories, each has contributed to the spread of modern and contemporary art movements in their regions, both by exhibiting such art styles and by conveying a true sense of passion for the movements. Each museum was designed in such a way as to break from traditional museum theories in order to better exhibit modern art styles. Combined with their design, both museums had employees who innovated how the museum interacted with its community, pushing the boundaries of what art museums had previously been able to accomplish. Going back to Gertrude Stein’s notion that an institution could be either modern or a museum, one must only look to SFMOMA or LACMA for evidence of the contrary. SFMOMA and LACMA each helped pave the way for modern art museums’ operations on the west coast, signaling a new paradigm for museums to operate in.
Notes
[1] Naomi Blumberg, “What’s the Difference Between Modern and Contemporary Art?” 2017, https://www.britannica.com/demystified/whats-the-difference-between-modern-and-contemporary-art.
[2] “Our History,” SFMOMA History, accessed January 31st, 2018. https://www.sfmoma.org/read/our-history/.
[3] Grace L. McCann Morley, “Art, Artists, Museums, and the San Francisco Museum of Art,” 1960, Interview by Suzanne B. Riess. http://digitalassets.lib.berkeley.edu/roho/ucb/text/morley_grace_l_mccann.pdf.
[4] Morley, “Art, Artists, Museums, and the San Francisco Museum of Art,” 33.
[5] Ibid., 36-38.
[6] Ibid., 35-37.
[7] “Our History,” SFMOMA History.
[8] “Overview,” LACMA History, accessed February 1st, 2018, http://www.lacma.org/overview#his.
[9] Henry Hopkins, “Interview of Henry Hopkins,” 1995, 45.
[10] Ibid., 45.
[11] Ibid., 107.
[12] Michaela Giebelhausen, The Architecture of the Museum Symbolic Structures, Urban Contexts, (Manchester: Manchester University Press, 2003), 4.
[13] Giebelhausen, The Architecture of the Museum,160-161.
[14] Ibid., 163.
[15] Helen Searing, New American Art Museums(New York: Whitney Museum of American Art, 1982), 13-15.
[16] Ibid., 41.
[17] “Our History,” SFMOMA History.
[18] Ibid.
[19] Giebelhausen, The Architecture of the Museum,160-161.
[20] Nathaniel Burt, Palaces for the People, 173.
[21] Bruce Altshuler, Collecting the New: Museums and Contemporary Art (Princeton University Press, 2006), 1.
[22] Giebelhausen, The Architecture of the Museum, 4.
[23] Vera L. Zolberg, “American Art Museums: Sanctuary or Free-For-All?” Social Forces, vol. 63, no. 2 (1984), 380-382, doi:10.2307/2579052.
[24] Zolberg, “American Art Museums,” 381.
[25] Ibid. 380-383.
[26] Kara Kirk, “Grace McCann Morley and the Modern Museum,” February 2017, accessed February 8th, 2018, https://www.sfmoma.org/essay/grace-mccann-morley-and-modern-museum/.
[27] Ibid.
References
Altshuler, Bruce. Collecting the New: Museums and Contemporary Art. Princeton: Princeton University Press, 2013.
Ashin, Deborah. Inside L.A. Art: A Guide to Museums and Galleries from Santa Barbara to San Diego. San Francisco: Chronicle Books, 1980.
Armstrong, Elizabeth, Michael Boyd, and Anna Brouwer. Birth of the Cool: California Art, Design, and Culture at Midcentury; [on the Occasion of the Exhibition Birth of the Cool: California Art, Design, and Culture at Midcentury; Orange County Museum of Art, Newport Beach, California, October 7, 2007 – January 6, 2008. The Blanton Museum of Art, the University of Texas at Austin, Austin, Texas, February 27 – May 31, 2009]. Munich: Prestel Publ, 2007.
Barron, Stephanie, Sheri Bernstein, and Ilene Susan Fort. Made in California: Art, Image, and Identity, 1900-2000. Los Angeles: Los Angeles County Museum of Art, 2000.
Benson, Sam, Richard F. Brown, Henry Hopkins, Frank J. Clark, Ernest E. Debs, and William L. Pereira. “Tar Pits to Temples: The Story of the Los Angeles County Museum of Art,” 2017. Internet resource.
Blumberg, Naomi. “What’s the Difference Between Modern and Contemporary Art?” 2017. https://www.britannica.com/demystified/whats-the-difference-between-modern-and-contemporary-art
Burt, Nathaniel. Palaces for the People: A Social History of the American Art Museum. Little Brown, 1977.
Coolidge, John. Patrons and Architects: Designing Art Museums in the Twentieth Century. Fort Worth, Texas: Amon Carter Museum, 1989.
Donahue, Kenneth, and George M. Goodwin. Collections and Programs at the Los Angeles County Museum of Art. Oral History Collection, Dept. of Special Collections, University Library, University of California, Los Angeles. [Los Angeles]: Oral History Program, University of California, Los Angeles, 1987.
Fuller, Diana Burgess, and Daniela Salvioni. Art, Women, California 1950-2000: Parallels and Intersections. Berkeley: University of California Press, 2002.
Giebelhausen, Michaela. The Architecture of the Museum Symbolic Structures, Urban Contexts. Manchester: Manchester University Press, 2003.
Goldfield, David R. Encyclopedia of American Urban History. 2007.
Govan, Michael, Lynn Zelevansky, Michele Urton, Jennifer MacNair, Thomas Frick, and Nola Butler. The Broad Contemporary Art Museum at the Los Angeles County Museum of Art, 2008. Los Angeles, California: Los Angeles County Museum of Art, 2008.
Hanquinet, Laurie. “Visitors to Modern and Contemporary Art Museums: Towards a New Sociology of ‘Cultural Profiles’.” Sociological Review61, no. 4 (2013): 790-813.
Henderson, Justin. San Francisco Museum of Modern Art. San Francisco: San Francisco Museum of Modern Art, 2000.
Hopkins, Henry. 1995. “Interview of Henry Hopkins.” http://oralhistory.library.ucla.edu/viewTextFile.do?itemId=29827&fileSeq=5&xsl=null
J. Paul Getty Museum, John Walsh, and Deborah Ann Gribbon. The J. Paul Getty Museum and Its Collections: A Museum for the New Century. Los Angeles: J. Paul Getty Museum, 1997.
Karlstrom, Paul J. On the edge of America: California modernist art, 1900-1950. Berkeley: University of California Press, 1996.
Kirk, Kara. “Grace McCann Morley and the Modern Museum” February 2017. accessed February 8th, 2018. https://www.sfmoma.org/essay/grace-mccann-morley-and-modern-museum/
Lowry, Glenn D., and Terence Riley. The New Museum of Modern Art. New York: Dept. of Publications, Museum of Modern Art, 2005.
McCann Morely, Grace L. 1960. “Art, Artists, Museums, and the San Francisco Museum of Art.” Interview by Suzanne B. Riess. http://digitalassets.lib.berkeley.edu/roho/ucb/text/morley_grace_l_mccann.pdf.
McClellan, Andrew. The Art Museum from Boullée to Bilbao. Berkeley: University of California Press, 2008.
McNassor, Cathy. Los Angeles’s La Brea Tar Pits and Hancock Park. Charleston, South Carolina: Arcadia Publications, 2011.
Muchnic, Suzanne. LACMA so Far: Portrait of a Museum in the Making. 2015.
Oakland Museum, Oakland Museum Association, and Oakland Museum of California. The Museum of California. Oakland, California: Oakland Museum Public Information Office, 1977.
“Our History.” SFMOMA History. Accessed January 31st, 2018. https://www.sfmoma.org/read/our-history/
“Overview.” LACMA History. Accessed February 1st, 2018, http://www.lacma.org/overview#his
Pollock, Griselda. Museums after Modernism: Strategies of Engagement. New Interventions in Art History. Oxford: Blackwell, 2007.
Searing, Helen. New American Art Museums. New York: Whitney Museum of American Art, 1982.
“SFMOMA 75th Anniversary: Aaron Betsky,” conducted by Richard Cándida Smith and Jill Sterrett, 2009, Regional Oral History Office, The Bancroft Library, University of California, Berkeley; © San Francisco Museum of Modern Art, 2010.
“SFMOMA 75th Anniversary: Gary Garrels,” conducted by Richard Cándida Smith, 2009, Regional Oral History Office, The Bancroft Library, University of California, Berkeley; © San Francisco Museum of Modern Art, 2013.
“SFMOMA 75th Anniversary: Robert Riley,” conducted by Richard Cándida Smith, 2009, Regional Oral History Office, The Bancroft Library, University of California, Berkeley; © San Francisco Museum of Modern Art, 2010.
Trenton, Patricia, William H. Gerdts, and Bram Dijkstra. California Light, 1900-1930. Laguna Beach, California: Laguna Art Museum, 1991.
Wilson, William. The Los Angeles Times Book of California Museums. New York: H.N. Abrams, 1984.
Zolberg, Vera L. “American Art Museums: Sanctuary or Free-For-All?” Social Forces, vol. 63, no. 2, 1984. doi:10.2307/2579052.






